foro trece
STVX + Revilla Arquitectos + HFS Arquitectos
Año 2016
Ubicación Aguascalientes
En el Complejo Ferrocarrilero Tres Centurias, el Gobierno del Estado de Aguascalientes ha consolidado un espacio de usos mixtos con una fuerte vocación cultural, encabezado por el MECA (Macro Espacio para la Cultura y las Artes) y complementado con infraestructura para exposiciones y eventos públicos y privados.
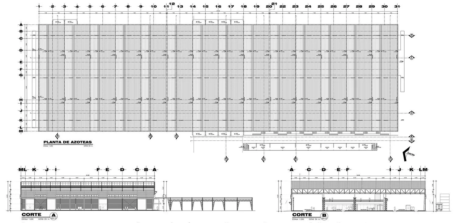
Dentro de este contexto, y ante la necesidad de un centro de convenciones de escala media en la entidad, se destina la nave industrial más grande del complejo —con más de 13,000 m² techados— para albergar un programa flexible de salones combinables, organizados en torno a una circulación longitudinal de más de 100 metros, que también funciona como vestíbulo y galería expositiva.
Una tercera parte del recinto fue adaptada como un mega-salón de eventos, ampliando así las capacidades del conjunto para atender diversos formatos y aforos.
El principal reto del proyecto no fue solo técnico o funcional, sino el de rescatar y dignificar el valor patrimonial de esta arquitectura industrial, integrándola con sensibilidad a un nuevo contexto contemporáneo.
