Unidad médica de hemodiálisis
STVX
Año 2014
Ubicación Aguascalientes
Superficie construida 2000 m2
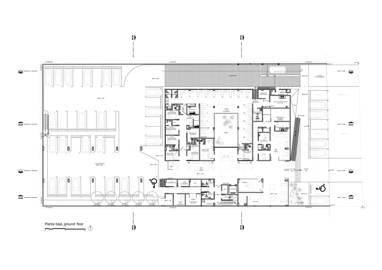
Este edificio de casi 2,000 m² distribuidos en dos niveles alberga un programa arquitectónico diseñado para responder con sensibilidad a las necesidades de los pacientes y del personal médico. En la planta baja, se organizan veinte estaciones de hemodiálisis dispuestas alrededor de un patio central abierto al cielo, con un cuidadoso diseño de jardinería y paisaje. Este espacio busca ofrecer una atmósfera de calma y serenidad, mejorando la experiencia de los pacientes durante sus tratamientos.
Como complemento al área principal, se integran consultorios médicos de especialidades relacionadas, cuartos de estancia corta, laboratorio, farmacia, cafetería y áreas de espera, creando un entorno funcional y cómodo.
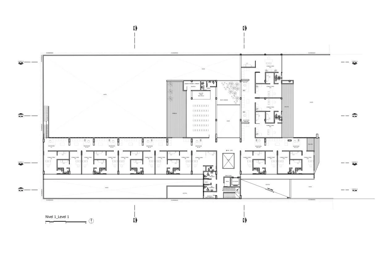
La planta alta está destinada exclusivamente a consultorios médicos para renta, fortaleciendo así la vocación del edificio como unidad médica integral. Este esquema permite complementar los servicios existentes y fomentar la interacción entre diferentes especialidades dentro del mismo complejo.
